Maison de la Plaine

jan.
2020

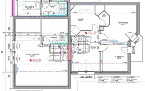
Rénovation d'une maison individuelle / Extension d'une maison individuelle

  • Rénovation de la maison existante en 2 logements locatifs, de 4 pièces en triplex
  • Extension de la maison existante, en 1 logement, de 4 pièces en duplex avec accès terrasse
  • Création de 2 abris voitures, non fermés, inférieur à 3,00 m au faîtage, pour les besoins du projet

  • Mission : conception avant-projet et permis de construire, plans détaillés, descriptifs des travaux, métrés, dossier de consultation des entreprises, réalisation des marchés de travaux
  • Principe constructif : Maçonnerie ; Isolation intérieure ; Enduit de façades (maison existante) ; Ossature bois isolée ; Bardage mélèze et bardage composite (extension)
  • Maître d'ouvrage : privé
  • Surface : 280 m²

Retour aux projets